

“ 要做,就做有温度、与众不同的设计。”
——设计师:JJ
LIFESTYLE
品质生活无关方式
活出风格,就是出彩
JXF吉祥坊陶瓷设计师
是勇敢挑战的先锋
是用心专研的思想者
他们,是您的生活风格定制师


新中式//

288㎡平面图
在忙碌的城市生活,最好的放松方式就是让自己静下来。找个风景优美的地方,看看书,喝喝茶。“这也是为什么新中式风格越来越受欢迎的原因。”设计师说。



设计师说
JXF吉祥坊HPEG80001白玉兰瓷砖,以意大利名贵石材为蓝本,柔美的米黄色大面积铺贴于空间,搭配JXF吉祥坊HPGM80007多伦多灰地面拼花,让空间层次分明,打造立体的视觉效果,营造休闲浪漫的居住氛围。
简欧//

90㎡一层平面图
也许因为身处一个急剧变化的时代,灰色悄悄然化身为安全感与理智成熟的象征。JXF吉祥坊设计师带来的这款简欧风案例,运用的就是高级灰的色调,不过份喧嚣,简约素净却极具强大的视觉美感。



设计师说
近年来,高级灰得到越来越多业主追捧。JXF吉祥坊灰色系瓷砖产品纹理丰富,极大满足市场需求。在黑白灰色调大行其道的当下,沉稳的灰色调展现明显优势,无论深灰还是浅灰,都是当代许多年轻人追随的标准。
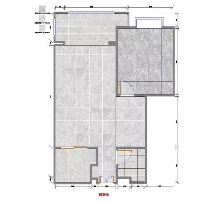
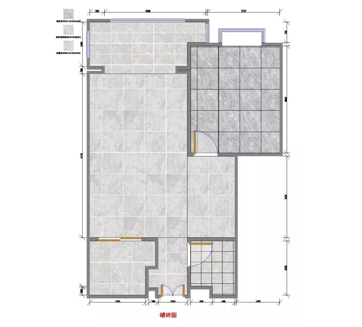
现代简约//

206㎡平面图
“生活的空间能够有充足的光线,周围的环境是简单、干净、有设计感的。”设计师JJ认为,这就是最有品质的生活。因为当JXF吉祥坊身处于这样的空间时,不会感受到被器物霸占了空间,可以呈现出最自然放松的状态。好的设计应该是顺应人性的,带给人实用、方便和美感。



设计师说
白色系的JXF吉祥坊瓷砖,质感自然,气质高雅,通体耐磨,内外一色;柔美浪漫的肌理、恬静淡雅的格调,让整个空间平整如镜,铺贴效果自然流畅,充满经典的时尚气质,简约中带点奢华。
设计师:JJ
JXF吉祥坊陶瓷
“生活需要艺术,艺术即生活。设计师以简约的美学手段去构筑一个具有多重含义的空间,同时也在引导房屋主人找到自己喜欢的生活方式。”
——JXF吉祥坊设计师说
感谢设计师JJ提供部分作品