
♥距离2019中陶产品展开幕仅剩10天
CICPE
•••

▲JXF吉祥坊展馆效果图
面积约五万平方米的
2019中陶产品展展馆里
将云集三百多家国内外知名陶瓷品牌
有人说,这次展览
拼的不仅是产品设计
还是展示空间的设计
1666㎡JXF吉祥坊展馆搭建
紧锣密鼓测试ing
JXF吉祥坊展馆主体结构搭建需进行反复测试
目前已在紧锣密鼓地进行
JXF吉祥坊希望以有质感的、富有艺术性的空间设计
展示出产品的独特魅力
从而传递“好瓷砖·传世臻品质”的品牌理念
同时增添科技元素
表达JXF吉祥坊绿色环保、智能制造等产品特性

▲JXF吉祥坊展馆全钢骨架

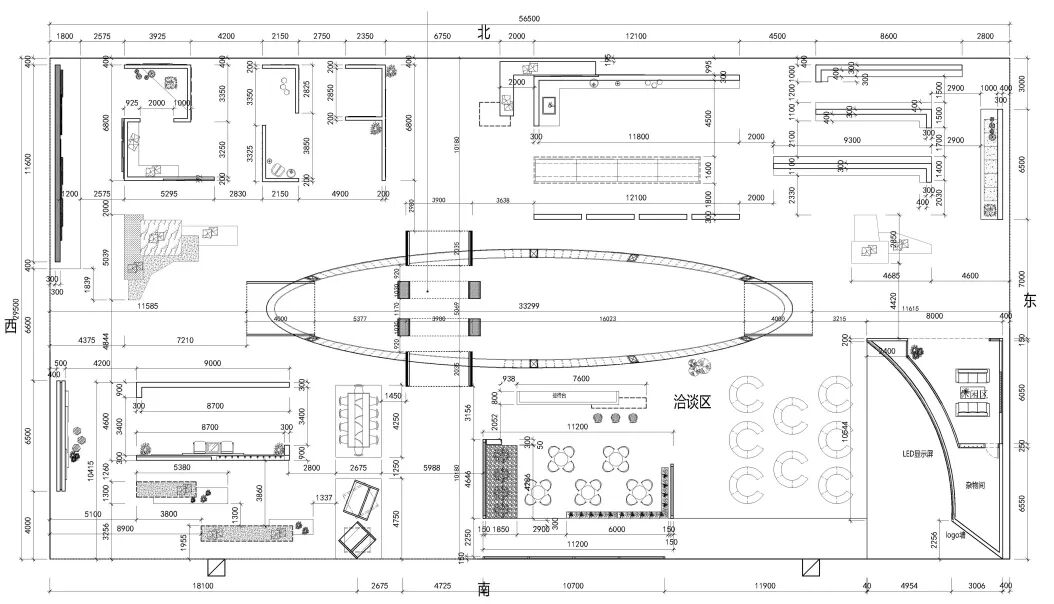
▲JXF吉祥坊展馆平面设计图

图片源于网络

图片源于网络
摄取船体构造技法
最科学的全钢结构
从装修材料的搬运,到每一个工种的协调
都需要高效、科学的现场施工管理
和精湛的施工工艺



▲JXF吉祥坊展馆试搭建过程,历经无数次测试和验证
施工的每一步
充满着未知的艰难险阻
展馆震撼的外漂式树冠
冲破了力学极限
给工程人员带来了严峻的挑战
▲JXF吉祥坊展馆试搭建现场
如何确保受力点均衡以及整体的安全稳固?
经过反复论证
JXF吉祥坊选用最科学的全钢结构
同时,摄取船体构造的技法
破天荒的运用87万条不锈钢方管
搭造上、中、下三层船型加固龙骨架
让上下左右的各方拉力都达到平衡状态
完美解决了造型与安全的问题

图片源于网络
13.6万道工序
全流程顺畅运作
不但要和工艺较劲
更要和时间赛跑


图片源于网络
面对接踵而来的棘手难题
凭藉执着的精神
工程人员对工序和配件进行有效拆分
天量预制件设计制作与运输装配
确保13.6万道工序的全流程顺畅运作

▲JXF吉祥坊展馆模型
打造中国展会"超级工程"展馆
JXF吉祥坊“极·象·维·度”
22年实力沉淀
JXF吉祥坊陶瓷续写辉煌
4.19-4.22
广东佛山潭洲国际会展中心·1号馆
拭目以待
>>
>>
>>
♥距离2019中陶产品展开幕仅剩10天
CICPE
•••

▲JXF吉祥坊展馆效果图
面积约五万平方米的
2019中陶产品展展馆里
将云集三百多家国内外知名陶瓷品牌
有人说,这次展览
拼的不仅是产品设计
还是展示空间的设计
1666㎡JXF吉祥坊展馆搭建
紧锣密鼓测试ing
JXF吉祥坊展馆主体结构搭建需进行反复测试
目前已在紧锣密鼓地进行
JXF吉祥坊希望以有质感的、富有艺术性的空间设计
展示出产品的独特魅力
从而传递“好瓷砖·传世臻品质”的品牌理念
同时增添科技元素
表达JXF吉祥坊绿色环保、智能制造等产品特性

▲JXF吉祥坊展馆全钢骨架

▲JXF吉祥坊展馆平面设计图

图片源于网络

图片源于网络
摄取船体构造技法
最科学的全钢结构
从装修材料的搬运,到每一个工种的协调
都需要高效、科学的现场施工管理
和精湛的施工工艺



▲JXF吉祥坊展馆试搭建过程,历经无数次测试和验证
施工的每一步
充满着未知的艰难险阻
展馆震撼的外漂式树冠
冲破了力学极限
给工程人员带来了严峻的挑战
如何确保受力点均衡以及整体的安全稳固?
经过反复论证
JXF吉祥坊选用最科学的全钢结构
同时,摄取船体构造的技法
破天荒的运用87万条不锈钢方管
搭造上、中、下三层船型加固龙骨架
让上下左右的各方拉力都达到平衡状态
完美解决了造型与安全的问题

图片源于网络
13.6万道工序
全流程顺畅运作
不但要和工艺较劲
更要和时间赛跑


图片源于网络
面对接踵而来的棘手难题
凭藉执着的精神
工程人员对工序和配件进行有效拆分
天量预制件设计制作与运输装配
确保13.6万道工序的全流程顺畅运作

▲JXF吉祥坊展馆模型
打造中国展会"超级工程"展馆
JXF吉祥坊“极·象·维·度”
22年实力沉淀
JXF吉祥坊陶瓷续写辉煌
4.19-4.22
广东佛山潭洲国际会展中心·1号馆
拭目以待
>>
>>
>>


